Chung cư The Prime Starlake hay còn được gọi là chung cư K8 Starlake, nằm ở vị trí đắc địa của khu đô thị Starlake khi là một dự án nằm trên đường 40m phía Nam khu đô thị thuộc giai đoạn 2, là dự án gần nhất của khu đến Hồ Tây. Dự án đang chuẩn bị mở bán sẽ cung cấp ra thị trường những sản phẩm chất lượng nhất đến cư dân của khu đô thị đô thị đẳng cấp nhất thủ đô.

Chung cư The Prime Starlake
Thông tin khu đô thị:
- Vị trí: Khu đô thị Starlake (Tây Hồ Tây), phường Xuân Đỉnh, Hà Nội

Vị trí dự án chung cư The Prime Starlake (Chung cư K8HH1 Starlake)
- Chủ đầu tư: Daewoo E&C (THT Development)
- Tổng diện tích khu đô thị Starlake: 186,6 ha
- Dân số: 24.300 người
- Giai đoạn 1: 114,8 ha, trong đó có 367 căn biệt thự, 3 tòa chung cư thuộc khu H9 với 603 căn hộ, 22 ha đất thương mại, dịch vụ với 15 khu
- Giai đoạn 2: 71,8 ha, trong đó có 226 căn biệt thự, shophouse; 2400 căn hộ chung cư; 2,6 ha đất thương mại, dịch vụ.
- Khu đô thị Starlake được quy hoạch là trung tâm hành chính quốc gia mới với 35 ha, làm trụ sở của 13 bộ, ngành.
- 04 trường quốc tế với 6.719 học sinh.
Khu đô thị Starlake - Khu đô thị all - in đẳng cấp châu lục
Khu đô thị Starlake có vị trí đắc địa bậc nhất Hà Nội, cách trung tâm chính trị Ba Đình chỉ khoảng 6.5 km, cách Hoàn Kiếm 8km. Nằm trong đại long mạch Hồ Tây – Ba Vì, trên ngã ba sông Hồng – Hồ Tây, được lựa chọn là 1 trong 2 trung tâm Hành chính mới của Hà Nội, nơi đặt trụ sở của các bộ ngành và các đại sứ quán các nước.
Khu đô thị Starlake là trung tâm của mọi trung tâm, vừa là trung tâm của Hà Nội mới, vừa là trung tâm của phần mở rộng của Hà Nội. Mọi con đường phát triển đều dẫn về Tây Hồ Tây. Trong đó:
+ Phía Đông là đường vành đai 2 – đường Võ Chí Công, con đường phân chia trung tâm Hà Nội cũ và trung tâm Hà Nội mở rộng
+ Phía Bắc là đường Tây Hồ Tây – trục hướng tâm, kết nối đô thị trung tâm Hà Nội với đô thị Sơn Tây.
+ Phía Tây là trục đường liên khu vực LK25 – hay đường Nguyễn Phong Sắc kéo dài, phía ngoài là đường Vành đai 3 – trục đường vành đai quan trọng nhất trung tâm Hà Nội.
+ Phía Nam là trục đường 40m, nối đường Trần Cung kéo dài đến đường Võ Chí Công, phía bên ngoài là đường Hoàng Quốc Việt – con đường hướng tâm, tâm linh kết nối trung tâm Ba Đình, Hồ Tây với vùng núi thiêng Ba Vì.
+ Xuyên tâm là trục đường Xuân Tảo – Nguyễn Văn Huyên kéo dài theo trục Bắc Nam; trục đường LK3 – Xuân La – vành đai 4 – theo hướng Đông Tây có mặt cắt rộng 40 – 50m.
+ Ngoài ra trong khu đô thị Starlake còn có 2 tuyến đường sắt đô thị đi qua là tuyến đường sắt đô thị số 2 và số 4; và rất gần các tuyến đường sắt đô thị số 6 – qua KĐT Resco Cổ Nhuế và tuyến số 8 qua đường Hoàng Quốc Việt.
Starlake la trái tim của chuỗi các đô thị mới khu vực như Starlake, Ngoại Giao Đoàn, Ciputra, Thành phố Giao Lưu, Resco Cổ Nhuế, Bắc Cổ Nhuế - Chèm, Cổ Nhuế,….
Chung cư The Prime Starlake
Thông tin dự án chung cư The Prime Starlake (Chung cư K8)
Cụm dự án K8 Starlake gồm 2 dự án Chung cư The Prime – Chung cư K8HH1 Starlake: có 03 tòa nhà, cụm K8CT1 gồm 04 tòa cao tầng.
Sơ đồ khu dự án the Prime Starlake
Chung cư The Prime Starlake:
+ Vị trí: K8HH1
+ Diện tích: 15.678m2
+ Mục đích sử dụng: khu dân cư, văn phòng, khu thương mại và các tiện ích.
+ Mật độ xây dựng: 31,95%.
+ Số tòa: 03 tòa cao tầng, trong đó: 02 tòa hỗn hợp chung cư, 01 tòa văn phòng
+ Số tầng: 26 tầng
Cơ cấu căn hộ chung cư The Prime
Căn hộ chung cư tòa The Prime Starlake – tòa K8F: số lượng 7 căn/tầng, gồm các loại căn: Căn loại A: 1 ngủ, diện tích 43,5 – 49,61m2; căn loại B: 1 ngủ, diện tích 46,04 – 51,86m2; căn loại C: 2 ngủ, diện tích 76,39 – 87,01m2; loại D: 2 ngủ, diện tích 84,48 – 94,88m2; loại E: 2 ngủ, diện tích 86,33 – 96,48m2; loại H: 3 ngủ, diện tích 113,15 – 126,09m2; loại M: penthouse: diện tích 199,23 – 222,73m2; loại N: Penthouse: diện tích 207,61 – 232,71m2
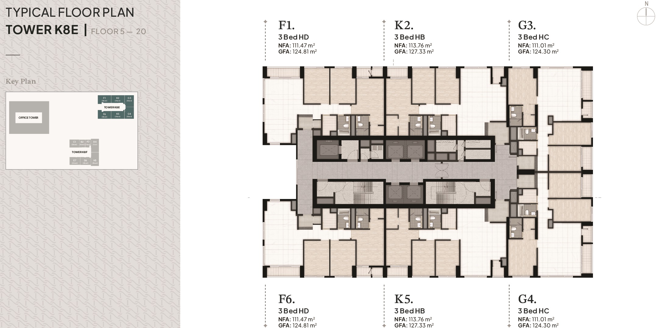
Căn hộ chung cư tòa The Prime – tòa K8E: số lượng 6 căn/tầng, gồm các loại căn: Loại F: căn 3 ngủ, diện tích 111,47 – 124,81m2; loại K: 3 ngủ, diện tích 113,76 – 127,33m2; loại G: 3 ngủ, diện tích 111,01 – 124,3m2; loại O: penthouse, diện tích 226,47 – 251,86m2.

Mặt bằng thiết kế chung cư The Prime Starlake tòa K8F

Căn loại A và H chung cư The Prime Starlake K8F

Căn D và E chung cư The Prime Starlake K8F

Căn N và M chung cư The Prime Starlake K8F

Mặt bằng thiết kế căn hộ chung cư The Prime tòa K8F

Căn hộ loại F và K tòa chung cư The Prime Starlake K8E

Căn hộ loại G và O chung cư The Prime Starlake K8E
Các tiện ích The Prime Starlake dành cho cư dân
Tiện ích chung khu đô thị:
Khu đô thị Starlake là khu đô thị đạt đẳng cấp quốc tế, nơi cộng đồng dân cư quốc tế an cư, làm việc vì vậy tiện ích được chủ đầu tư xây dựng hiện đại, đồng bộ như hồ điều hòa, trường học, khu thương mại, khu văn phòng, trụ sở các bộ, ngành, quảng trường,…để phục vụ cư dân.
Tiện ích riêng dành cho cư dân chung cư The Prime Starlake:
Bể bơi 4 mùa với kích thước 4,6mx22m
Bể bơi ngoài trời có khu bơi dành cho trẻ em rộng 320m2
Sân golf trong nhà với 5 màn hình mô phỏng
Khu thể dục 240m2
Khu thư viện và vui chơi trẻ con có bố trí quầy cà phê dành cho phụ huynh.
Phòng xông hơi 177m2
Hệ thống căn hộ thông minh với: nhận diện khuôn mặt, cảm biến an ninh trong căn hộ, quản lý khách truy cập từ xa, kiểm soát tập trung,….hệ thống đỗ xe thông minh nhanh, dễ dàng tiếp cận cho cư dân.
Số lượng để xe của chung cư The Prime: 423 lốt để xe ô tô, trong đó có 279 lốt cho cư dân, 144 lốt khối văn phòng; 1084 chỗ để xe mô tô,…
Mức độ hoàn thiện căn hộ: Căn hộ chung cư The Prime Starlake sẽ hoàn thiện đồng bộ, hiện đại để cư dân chỉ việc chuyển đồ vào ở.
- Phòng khách: tường được ốp gạch sứ để giữ được mỹ quan, không bị gấm ẩm ướt.
Cửa sổ phòng khách được thiết kế rộng, nhiều ánh sáng, sang trọng bằng kính cửa sổ
Ngay cửa ra vào được bố trí hệ thống tủ giày; cửa ra vào được lắp đặt khóa chóng cháy, màn hình camera tiện dụng
Hệ thống điều hòa trung tâm của hãng Samsung
- Phòng ăn và khu vực bếp:
Đèn trang trí trần nhà sang trọng
Máy hút mùi và bếp điện hiện đại, an toàn, tiết kiệm
Cửa sổ khu vực bếp được bố trí tinh tế
Khu bếp được đầu tư hệ thống tủ bếp
- Phòng ngủ: Tủ quần áo; cửa ra vào; sàn gỗ; bàn trang điểm; lưới chống muỗi;
- Phòng vệ sinh:
Bồn vệ sinh, chậu rửa mặt, sen tắm của Toto
Bồn tắm, các phụ kiện của hãng Grohe
Bình nước nóng
Chung cư The Prime Starlake (K8HH1) sẽ là dự án nhận được nhiều sự quan tâm của quý khách hàng để kiến tạo nên một cuộc sống chất lượng hàng đầu tại Hà Nội.
Chi tiết vui lòng liên hệ SJK Land 085.989.3555 hoặc 0987.429.748
Video tiến độ dự án chung cư The Prime 18.10.2025