Dự án Hà Nội Tropical Hà Nội là dự án đang nhận được sự chủ ý của quý khách hàng khi chuẩn bị được chào bán ra thị trường. Được xây dựng gắn với yếu tố xanh - sinh thái sẽ như là ngôi nhà thứ 2 cho gia đình bạn nghỉ ngơi, sum vầy sau thời gian mệt mỏi với công việc, đây cũng là cơ hội tốt để đầu tư cho dòng bất động sản tại một trong khu đô thị được đánh giá năng động bậc nhất Hà Nội.

Vị trí: xã Yên Bình, huyện Thạch Thất, thành phố Hà Nội
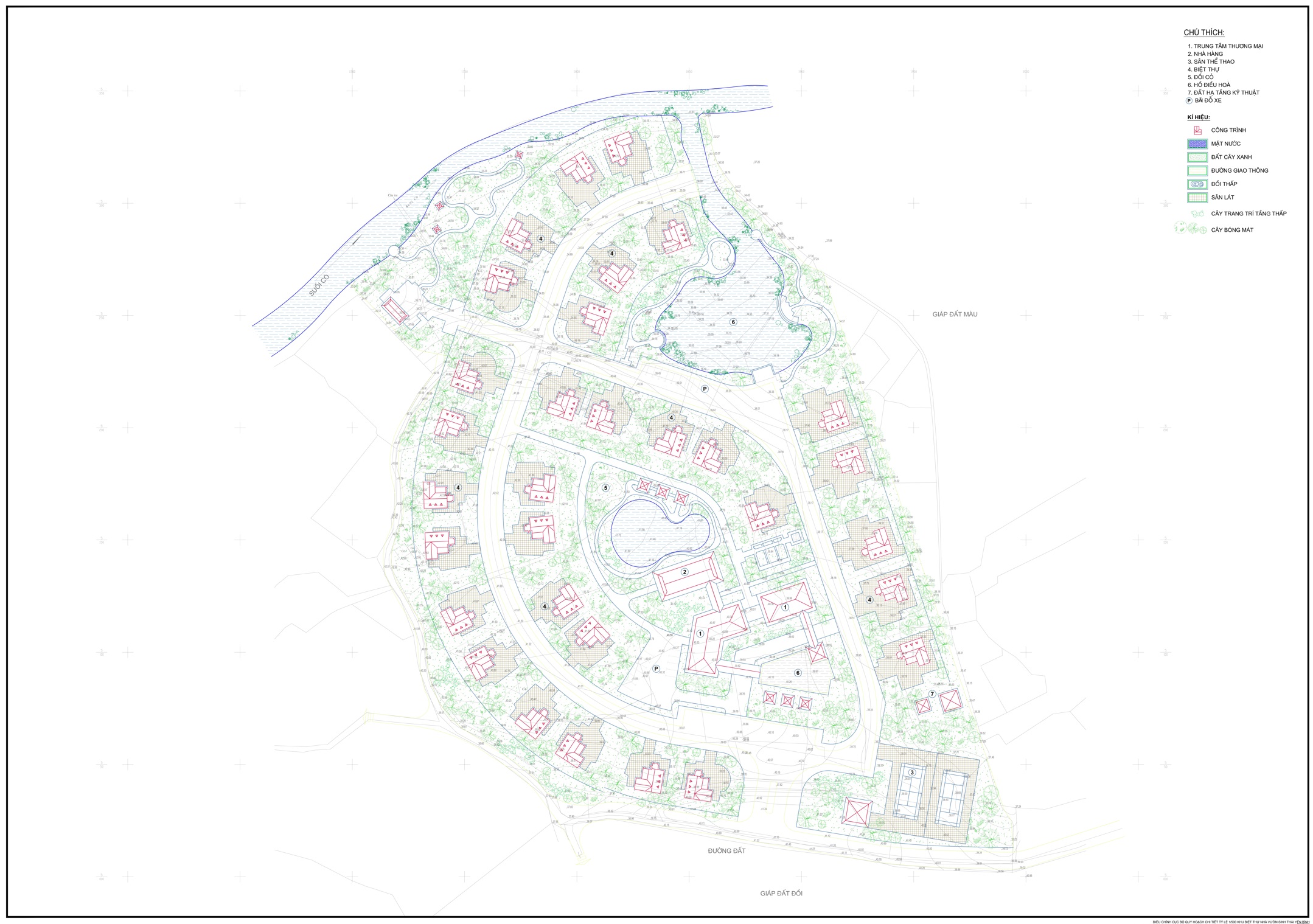
Ranh giới: phía Tây Bắc giáp sông Cò, phía Đông Nam giáp đất thổ canh xóm Dân Lập, xã Yên Bình; phía Nam giáp khu đất đồi; phía Tây Bắc giáp khu dân cư xóm Cò, xã Yên Bình, Thạch Thất.

Tên quy hoạch: Khu biệt thự nhà vườn sinh thái Yên Bình.
Tên thương mại: Dự án Hà Nội Tropical Garden
Chủ đầu tư: Công ty cổ phần Xuân Cầu Holdings
Tư vấn phát triển và quản lý dự án: Công ty CP phát triển & Tăng trưởng Xanh – EDGE.
Diện tích đất: 62.413,8 m2. Trong đó, đất ở 23.495,2m2, đất công cộng dịch vụ, công cộng 3.908,6m2, đất cây xanh sử dụng công cộng 12.488,1m2, đất cây xanh chuyên dụng 2.617,2m2, đất mặt nước 3.165,1m2, đất giao thông 15.265,2m2, đất hạ tầng kỹ thuật 486,2m2, đất giao thông 990,3m2.
Dân số: 336 người.
Sản phẩm: biệt thự nhà vườn (biệt thự đơn lập và xong lập)
Tổng số lô: 84 lô.
Diện tích trung bình: 200 – 450m2/lô đất.
Mật độ xây dựng trung bình: khoảng 28%
Tầng cao: 1-3 tầng.
Pháp lý: Sở hữu lâu dài.

Một số điểm nhấn của dự án:
1- Vị trí đắc địa:
Vị trí dự án Hà Nội Tropical Garden đắc địa khi:
- Cách trung tâm Hà Nội khoảng 30km về phía Tây.
- Nằm trên trục giao thông thuận lợi: trục cao tốc Đại lộ Thăng Long đi Hòa Bình và các tỉnh miền núi phía Bắc.
- Trong khu đô thị vệ tinh Hòa Lạc – trung tâm thành phố phía Tây Hà Nội.

2. Giá trị đầu tư hấp dẫn:
Hòa Lạc đang trở thành điểm đầu tư hấp dẫn tại Hà Nội khi là đô thị vệ tinh phía Tây Hà Nội, trung tâm của thành phố phía Tây (Hòa Lạc, Xuân Mai), đang trở thành động lực mới trong tăng trưởng của Hà Nội, trung tâm đổi mới sáng tạo đã được khởi động, nhiều tập đoàn công nghệ hàng đầu thế giới sẽ vào, các trường đại học như Đại học Quốc gia Hà Nội, đại học Sĩ Quan Chính Trị, Học Viện Viettel,….là những nền tảng ban đầu để tạo nên một đô thị công nghệ, công nghiệp chất lượng cao bậc nhất cả nước và khu vực.
3. Xanh – sinh thái.
Dự án nằm trong vành đai xanh bao quanh đô thị Hòa Lạc có chức năng chính là đô thị sinh thái – nghỉ dưỡng, đô thị khoa học – công nghệ theo hướng phát triển đô tị xanh, đô thị thông minh, tiết kiệm năng lượng, trimg tâm vùng phía Tây Hà Nội vì vậy dự án Hà Nội Tropical Garden đi đầu xu hướng xây dựng ngôi nhà thứ 2 cho quý khách hàng, là nơi nghỉ ngơi chất lượng co các gia đình, các chuyên gia của đô thị.
Mật độ xây dựng của dự án chỉ vào khoảng 28%, trong đó diện tích mặt nước, diện tích cây xanh chiếm khoảng 30% là những chỉ số vàng trong phát triển khu sinh thái tại trung tâm đô thị.

Hồ Vũ Điệp

Xanh - sinh thái là tiêu chuẩn hàng đầu tại dự án

Các căn biệt thự

Tầm view chất lương

Khu đường dạo bộ
4. Tiện ích hoàn hảo:
Dự án Hà Nội Tropical Garden có đầy đủ các tiện ích phục vụ cư dân như hồ Vũ Điệp, suối Cò, cụm thể thao ngoài trời, đồi thông, đường dạo bộ, đảo chuồn chuồn, sân chơi, bể bơi vô cực, cầu vọng cảnh, quầy bar, coffee, minimart, khu cắm trại, BBQ….vừa đảm bảo sự yên bình nhẹ nhàng cho cư dân, vừa đảm bảo sự tiện lợi phục vụ chất lượng cuộc sống cho quý khách hàng.

5. Chủ đầu tư uy tín.
Công ty Cổ phần Xuân Cầu Holdings được thành lập từ năm 1996 với phương châm “cống hiến giá trị đích thực” với các lĩnh vực: bất động sản, năng lượng tái tạo, cơ sở hạ tầng & logistics, vật liệu xây dựng và thương mại dịch vụ.
Trong lĩnh vực bất động sản với các dự án đậm chất xanh – sinh thái như khu đô thị và du lịch sinh thái Diêm Vân tại Tuy Phước, Bình Định, khu đô thị sinh thái Xuân Cầu Văn Giang, huyện Văn Giang, khu đô thị Xanh Villas – Hà Nội,….trong đó đặc biệt là dự án Xanh Villas, tại xã Tiến Xuân, Thạch Thất (cách 5 phút đến dự án Hà Nội Tropical Garden) với diện tích 45 ha, 341 biệt thự đang được xây dựng, một số đã đưa vào sử dụng.
Vị trí đắc địa, trung tâm của đô thị năng động bậc nhất Hà Nội, giao thông thuận tiện, tiện ích đẳng cấp, chất lượng sống xanh – sinh thái, sẽ tạo nên giá trị sống bền vững cho quý cư dân dự án.